Ref. 007917
Descobreix aquest magnífic habitatge situat en una ubicació privilegiada al centre d’Andorra la Vella, en plena Avinguda Meritxell. Es tracta d'un pis de nova construcció que ofereix unes excel·lents prestacions amb acabats de gran qualitat i disseny modern.
Característiques de l’habitatge:
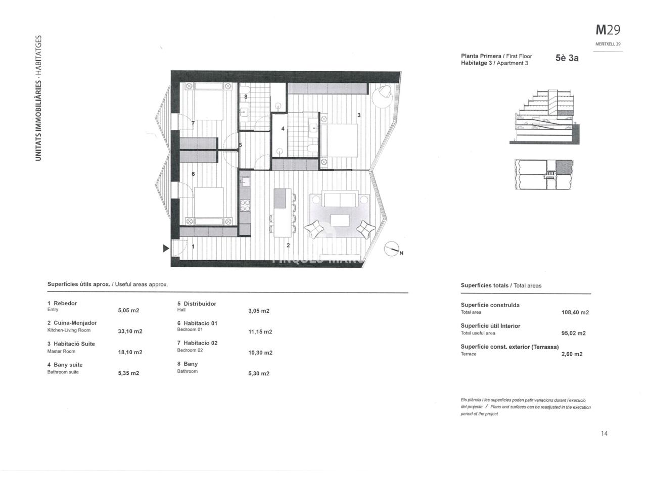
Superfície útil: 95,02 m²
Distribució: Saló-menjador amb cuina oberta de 33,10 m², habitació principal tipus suite amb bany privat, dues habitacions addicionals i un segon bany complet.
Terrassa: 2,60 m²
Acabats i instal·lacions de qualitat superior:
Cuina: Moblada amb mobles de cuina de xapat laminat i electrodomèstics de marca Miele o equivalent, incloent forn, microones integrats, placa d’inducció i nevera-congelador panelat.
Climatització: Sistema de calefacció individual per aerotèrmia i terra radiant amb control domòtic independent en cada estança.
Aïllament acústic i tèrmic avançat amb panells de llana de roca i vidres triples de baixa emissivitat, que garanteixen una eficiència energètica superior.
Domòtica: Sistema de control domòtic per a il·luminació, temperatura i persianes, accessible des del telèfon mòbil.
Banys: Equipats amb sanitaris de qualitat, amb lavabos de marca Catalano, aixetes encastades de disseny i acabats moderns en porcellànic.
Altres avantatges:
Aquest habitatge, situat en una de les zones més cèntriques i comercials d'Andorra, compta amb una distribució funcional i espais diàfans. A més, l'edifici disposa de tres plantes d’aparcament, accessos privats i està envoltat de tots els serveis necessaris.
Viu amb tot el confort i l'exclusivitat en un dels nous habitatges de Meritxell 29, el teu espai ideal al centre d’Andorra la Vella!
Descobreix aquest magnífic habitatge situat en una ubicació privilegiada al centre d’Andorra la Vella, en plena Avinguda Meritxell. Es tracta d'un pis de nova construcció que ofereix unes excel·lents prestacions am...
Descobreix aquest magnífic habitatge situat en una ubicació privilegiada al centre d’Andorra la Vella, en plena Avinguda Meritxell. Es tracta d'un pis de nova construcció que ofereix unes excel·lents prestacions amb acabats de gran qualitat i disseny modern.
Característiques de l’habitatge:
Superfície útil: 95,02 m²
Distribució: Saló-menjador amb cuina oberta de 33,10 m², habitació principal tipus suite amb bany privat, dues habitacions addicionals i un segon bany complet.
Terrassa: 2,60 m²
Acabats i instal·lacions de qualitat superior:
Cuina: Moblada amb mobles de cuina de xapat laminat i electrodomèstics de marca Miele o equivalent, incloent forn, microones integrats, placa d’inducció i nevera-congelador panelat.
Climatització: Sistema de calefacció individual per aerotèrmia i terra radiant amb control domòtic independent en cada estança.
Aïllament acústic i tèrmic avançat amb panells de llana de roca i vidres triples de baixa emissivitat, que garanteixen una eficiència energètica superior.
Domòtica: Sistema de control domòtic per a il·luminació, temperatura i persianes, accessible des del telèfon mòbil.
Banys: Equipats amb sanitaris de qualitat, amb lavabos de marca Catalano, aixetes encastades de disseny i acabats moderns en porcellànic.
Altres avantatges:
Aquest habitatge, situat en una de les zones més cèntriques i comercials d'Andorra, compta amb una distribució funcional i espais diàfans. A més, l'edifici disposa de tres plantes d’aparcament, accessos privats i està envoltat de tots els serveis necessaris.
Viu amb tot el confort i l'exclusivitat en un dels nous habitatges de Meritxell 29, el teu espai ideal al centre d’Andorra la Vella!
Llegir més
|
Pàrquing |
|
|
Calefacció |
|
|
Ascensor |
|
|
Terrassa |
|
|
Planta |
5
|
|
Superfície útil |
108 m2
|